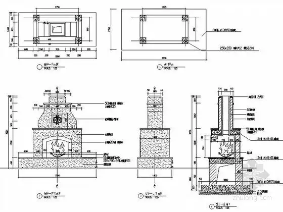
壁炉详图Ⅰ
[图块/节点]壁炉详图
收藏词条 编辑词条 工业炉砌体
图块节点壁炉详图施工图下载
自己砌造真火壁炉,这个方案可行吗?
想做个石砌壁炉要怎么建造有什么技术规范
别墅云石壁炉详图
时尚壁炉装修详图
壁炉施工图
[分享]壁炉节点cad资料下载
你50000块钱买的壁炉理应配上一套好烟囱
实用教程砖砌壁炉
周星驰十大最佳电影!第一名电影精彩度震惊海外!
240_184gif 动态图 动图
往事随风_歌谱歌词_曲谱资料
我突然觉得我他妈连狗都不如
终于看到小糯米的正脸了,长相清秀的她继承了爸爸妈妈的优良基因,怎么
白描人物勾线技法,真真走心的好教材.
老照片:九一年黑白半寸照,上面都是青春靓丽美少女
水墨国画初学.竹
hdr:150 城市户外环境照明贴图 626cg资源站
helltaker美图(3)
译林英语一年级上册unit8 put on your coat story time公开课课件ppt
淮安市洪泽实验幼儿园中班组——"我是小小劳动者"五 一节主题活动