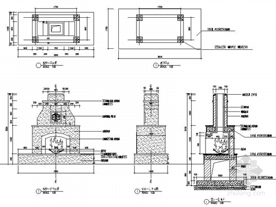
中户型壁炉节点大样
壁炉详图Ⅰ
壁炉节点图
壁炉平立面详图
想做个石砌壁炉要怎么建造有什么技术规范
[图块/节点]壁炉详图
旧货市场淘来的老木方用在壁炉上是什么感觉
自己砌造真火壁炉,这个方案可行吗?
你50000块钱买的壁炉理应配上一套好烟囱
时尚壁炉装修详图
砖砌辐射对流壁炉cad设计图
壁炉详图Ⅱ
成本不到5块钱,做道蒜香烤南瓜,一个烤箱就解决,家人都爱吃
数学知识平移旋转轴对称手抄报画法,二年级轴对称手抄报怎么画 - 学前
中国小鲜肉~男星最帅排行榜 - 明星偶像 - zeze!啧啧
约会大作战 时崎狂三 跪姿 泳装内衣 绅士版 优质版 盒装手办
张云雷年度最具突破男歌手
政史地 高二政史地 第二讲:东南亚ppt 世界地理之东南亚 二,地形特征
organic raw mustard greens
第263幅唐老鸭卡通画马克笔画简笔画
填色绘本图画绘画册幼儿彩色笔涂色简笔画套装 第一阶段图画本(单本)
盆景欣赏(五)
安利蔡徐坤
再见"最美周芷若",周海媚因病去世,曾拒演周芷若