安静不临街 采光无遮挡 业主诚意出售,富力城(c区)二手房,1220万,3室2
富力城c区
富力又一城(c区)
富力城c区89平刚需三居室 业主急售.一口价135万.小区第 - 抖音
富力城(南区),航天大道366号-西安富力城(南区)二手房,租房,房价-西安
16 富力城c区10号楼法拍房
富力城
林和平董事
没有人会拒绝穿白袜的男生吧#袜子 #潮袜推荐 #袜子穿搭 # - 抖音
玉皇大帝的名字叫什么?玉皇大帝的姓氏是什么?
皮带轮厂家,有需要联系,型号齐全.abcd单槽双 - 抖音
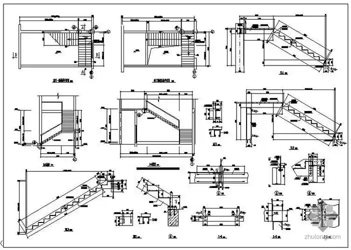
某钢结构两折楼梯节点构造详图
今天画点小怪兽.#漫画 #娘化 #怪兽娘 #奥特曼 #画画 - 抖音
明星同款情侣装短袖t恤女ins应援服纯棉打底衫半袖宽松大码上衣夏
植物简笔画植物简笔画图片大全
国歌简谱
240_320竖版 竖屏gif 动态图 动图
2021欧洲杯分组名单及赛程时间表一览
男人的梦中情人如果有脸那一定属于8090年代的香港女星