楼梯剖面表示识图教材.jpg
二,楼梯剖面图
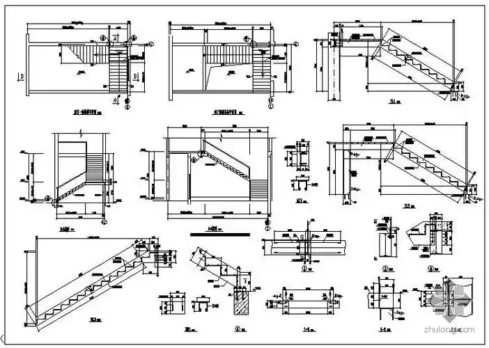
多种常用楼梯剖面大样图整理
18级小河工优秀作业-楼梯剖面图
楼梯剖面图
楼梯剖视结构图门窗结构及材料表剖面图样式二套结构申明:内容来自
楼梯剖面图表示
楼梯剖面施工图纸
(图62楼梯剖面图)了解楼梯间各楼层平台,休息平台面的标高:楼层平台
楼梯底层平面1:50楼梯二层平面1:50楼梯顶层平面1:50楼梯剖面
设计打卡ps封面设计作品集排版
西蜀新秀,盛夏启幕成都融创万达嘉华酒店开门迎客!
迈巴赫多少钱一辆全球最贵十大豪车
费玉清一生最重要的两个女人,一个未娶到,一个想合葬_江蕙_关系_女孩
可爱单纯女生头像真人唯美女生图片高清大全
"好声音"的陈冰也被出来了!点赞网友的评论,疑为自己发声
觉醒年代 - 堆糖,美图壁纸兴趣社区
国风音乐探传统宝库创时代新声
0709衣服装裁剪图纸样板新款版夏季气质修身收腰连衣裙大摆裙女装
原创泰星娜诺惊艳现身穿透视装登红毯胶带封盖大胆抢眼
李依晓 饰 风四娘
茯苓无硫薄片新货上市500g茯苓