完成卫生间立面图
洗手台立面图pdf
厂家批发简约现代pvc浴室柜组合卫浴柜挂墙吊柜洗脸洗手盆梳洗柜
洗手台大样图.png
卫生间立面图
完成卫生间立面图 - 云琥在线 - 互联网设计在线教育平台
成人洗手台正立面图本规范主编单位华建施工工艺学会本规范参编祷位
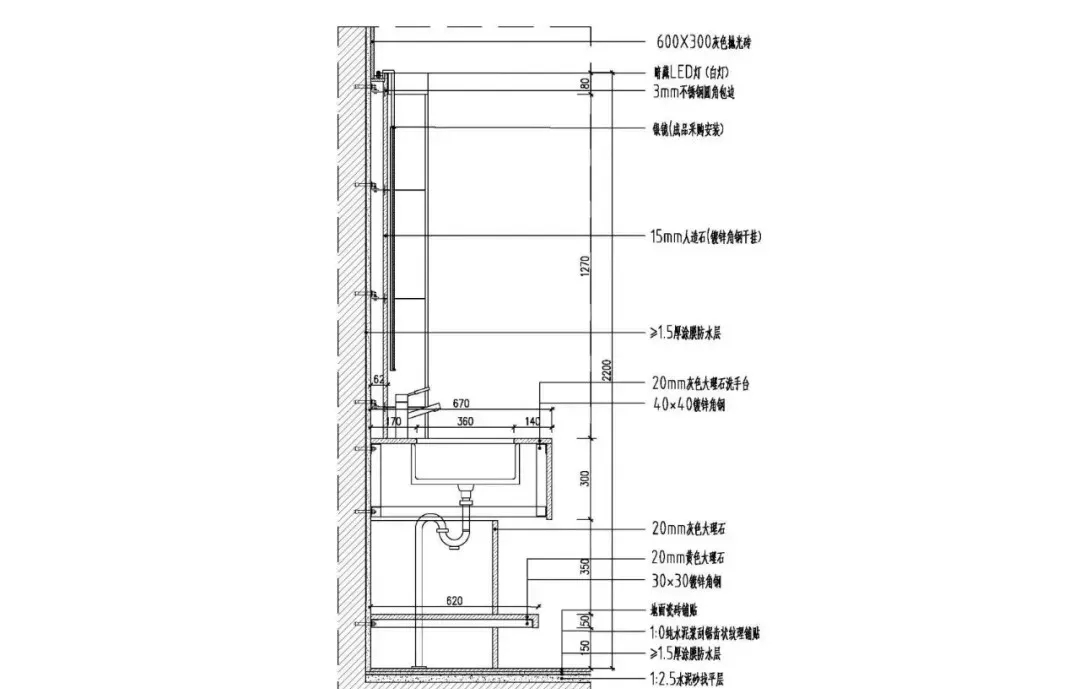
现代洗手台节点大样施工图下载
洗手台设计cad参考详图,包含洗手台平面图,洗手台剖面图,洗手台立面图
洗手间立面,大样图
分享洗手台立面图块集资料下载
洗手台的宽度一般为多少,了解这些知识以后装修再也不迷路!
我从小就情感淡漠,流落到国外后,我更是可以肆意惩戒那些恶人
星晠##迪拜#雨果-酱超话
唯美二次元动漫高清桌面壁纸
老司机污污撩妹表情包160张有图在手撩妹无忧
这也是两人第一次在和电视连续剧上边的协作,这也是吴亦凡难得少有的
锁屏壁纸 文字控最爱 微信朋友圈背景图
朱一龙 我的爱对你说 樊伟-柠檬
月牙儿与阳光
每天安利一位明星--鹿晗
【师尊】沈清秋_人渣反派自救系统冰秋沈清秋q版墨香铜臭绘画作品
鸵鸟我的老家在非洲
陆生植物