现代洗手台节点大样施工图下载
卫生间立面图
分享洗手台立面图块集资料下载
大理石洗手台3种节点图及案例欣赏
完成卫生间立面图 - 天琥云课堂 - 互联网设计在线教育平台
洗手台立面图pdf
浴室中式洗手台效果图
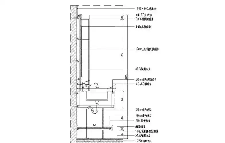
洗手台设计cad参考详图,包含洗手台平面图,洗手台剖面图,洗手台立面图
完成卫生间立面图 - 云琥在线 - 互联网设计在线教育平台
洗手台大样图.png
高端肥牛火锅店卫生间洗手台立面图
咖啡吧公用卫生间洗手台立面图cad图纸
今夜无人入睡简谱
梦醒时分双手简谱预览1-钢琴谱文件(五线谱,双手简谱,数字谱,midi,pdf
管螺纹尺寸对照表(含底空尺寸)
每个女人都要有一只迪奥999,7招教你辨别真假
新鲜水果蔬菜图片
原创阚清子气场真强大粉色碎花裙短发32岁依旧美如少女
和蔼可亲的执事们2/2.by order of the po - 抖音
《摩天大楼》作者肯定angelababy,称她饰演的美宝符合原著
书法味已为您生成 | 勇猛精进 | 的书法行书横幅样式
最帅最成熟大叔微信头像图片大全
高清唯美动漫女生头像2020最新 我们每个人都应该像向日葵那样
最近看到的,胖胖的卡通版唐朝仕女图,怎么可以这么萌