相关图片
安静-周杰伦g调六线pdf谱吉他谱-虫虫吉他谱免费下载
《七里香》周杰伦 简谱 吉他谱
搁浅-周杰伦-陈同学弹吉他版本c调六线pdf谱吉他谱-虫虫吉他谱免费
周杰伦安静吉他谱g调高清版
《first kiss》不能说的秘密插曲-周杰伦 谜途音乐原版c调吉他谱g调六
《明明就》吉他谱 c调弹唱谱_周杰伦_山山吉他制谱1
「花海」周杰伦「凡凡吉他编配」a调六线pdf谱吉他谱-虫虫吉他谱免费
周杰伦《彩虹》吉他谱-c调
彩虹 周杰伦吉他谱合集(二十一)#周杰伦吉他谱 #周杰伦 # - 抖音
周杰伦 枫 吉他谱 c调指法c调六线吉他谱-虫虫吉他谱免费下载
周杰伦枫吉他谱
周杰伦《借口》吉他谱_c调精编版六线谱
随机推荐
在抑郁的开始,到最后的自卑情结,悲伤,绝望,厌世,悲观,痛苦,或每天在
魔法汉字组合卡片儿童偏旁部首扑克纸牌游戏识字神器趣味拼字卡片
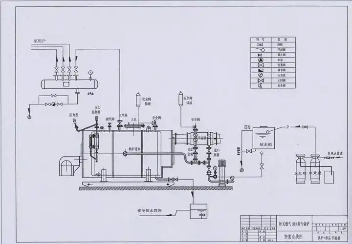
旋转 卧式蒸汽锅炉带承压节能器安装示意图
符文字母符号futhark. 灵感来自古老的神秘符号维京字母和符文.
折纸效果新年元旦圣诞字体效果样机ps海报设计素材
龙在边缘centuryofthedragon(1999)
建党100周年晚会led舞台演出视频背景素材-音乐视频-搜狐视频
简约黑色背景图标宽屏桌面壁纸 第一辑
真人/蓝色系ins女头_女生头像_我要个性网
年轻时帅气逼人的黄磊
《八佰》场景
speos-admissions01 at any time you are most welcome to come and