相关图片
老蜗牛:家庭影院(客厅影院)布线实战攻略
只需5招教你完美配置家庭影院
史上最全的家庭影院点位布置图 想自己diy家庭影院的朋友可以看看
家庭影院,别墅私人影院,者尼,私人影院设计方案,者尼文化传媒(北京)
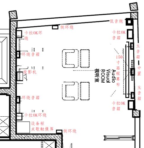
是只做家庭影院,还是也要做卡拉ok系统,这些都要想清楚,然后把平面图
【音频篇】来测试一下你的家庭影院效果怎么样,示范级电影推荐
影音室平面图.jpg
1,3d影院大厅应有合理的平面布局,避免与噪声及振动的房间为邻.
百万别墅定制影院 篇四十一:包含影k,智能中控和户外背景音乐的全宅
新买的家庭影院啊,就是不知道怎么摆
50平米家庭影院怎么布置呀?自己实在是外行
家庭影院设计布局图线材投影音响设备采购推荐评估声学装修咨询