相关图片
家庭影院,别墅私人影院,者尼,私人影院设计方案,者尼文化传媒(北京)
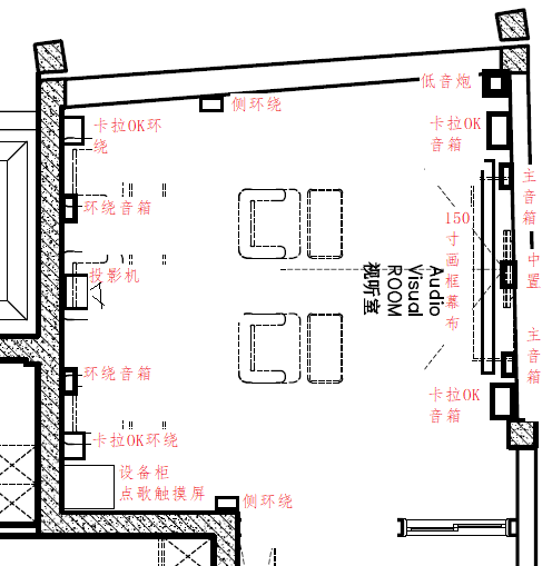
是只做家庭影院,还是也要做卡拉ok系统,这些都要想清楚,然后把平面图
3万元打造客厅家庭影院?我的入门级家庭影院组建方案
家庭影院设计方案
百万别墅定制影院 篇四十一:包含影k,智能中控和户外背景音乐的全宅
50平米家庭影院怎么布置呀?自己实在是外行
【hiwe艾维】装一套家庭影院,让爱早点回家__财经头条
影音室平面图.jpg
史上最全的家庭影院点位布置图 想自己diy家庭影院的朋友可以看看
家庭影院,别墅私人影院,者尼,私人影院设计方案,者尼文化传媒(北京)
四千字的干货分享小皓子历时一年的史塔克家庭影院之路
新买的家庭影院啊,就是不知道怎么摆