男士健身壁纸,自律给我自由94
锻炼壁纸来袭94开启你的健身之旅 想要开启健身之旅,先从壁纸开始吧
04来看看这些健身励志壁纸吧!
健身之美,从壁纸开始:健身主题手机壁纸
心和肌肉换了岗,撸铁总比舔狗强 #健身壁纸 #健身 - 抖音
94男生健身壁纸,力量与美学的结合99
健身哑铃壁纸,激励你的每一天94
94男生健身壁纸,力量与美学的结合78
94健身男神壁纸,彰显力量与魅力! 想要感受健身男神的魅力吗?
94强壮男人健身房壁纸精选9115 想寻找一些能激励你健身的壁纸
94男生健身壁纸,力量与美学的结合99 男生健身壁纸来啦!
lol努努雪人骑士3d模型
新品天道酬勤墙贴亚克力3d立体公司企业背景墙贴画办公室墙壁装饰
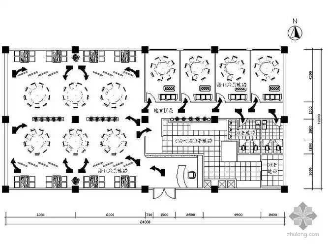
餐饮空间平面图
锦衣之下陆绎箜篌正要成交怎料被严世蕃截胡二人火药味十足
没想到,陈好和王晓晨颜值大跳水,彻底治好了我的"审美
大侦探皮卡丘
荷花工笔画装饰
一桌好菜~小伙伴记得我爱吃的西兰花虾鱼蟹~鸡爪~牛百叶~还有暖胃
并无从政经验的希特勒,为何能够牢牢掌握德国?|二战|火器|纳粹党|兴登
p10:我和我99 01泡泡教程【金智秀_kimjisooecho
关系淡了,ag流苏见梦泪称呼是"梦老师",梦泪,老帅也有隔阂
来自台北小哥名叫黄欣元这位小钢炮瞬间就脱颖而出颜值在线肌肉能打或