求助各位小卫生间三分离布局怎么选
1.2*1.5米卫生间设计,1.2*1.5米卫生间设计(1.5×2.
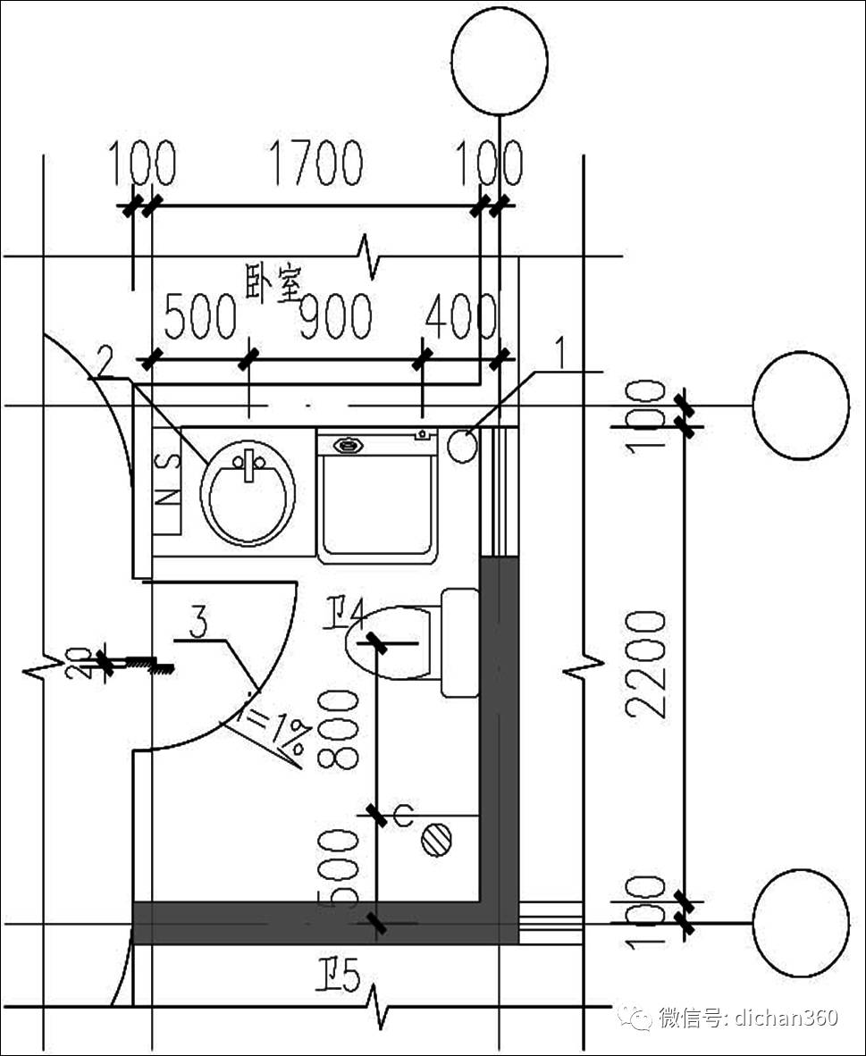
卫生间平面图
310㎡卫生间如何装修16张卫生间装修布局图科学实用又人性化
卫生间平面
画个卫生间啊
小面积卫生间,如何布置更好用?
2平方卫生间跟老公 再也不抢厕所了#别墅设计 #空间设计 #卫生间
户型 户型图 平面图 1080_1440 竖版 竖屏
3平米的卫生间怎么设计
修改后卫生间平面图问题点:1,无前室的卫生间门不应直接开向厨房
健身会所公共卫生间平面图
中国十个著名妈祖庙_天后宫_建筑_福建
记者披露我军空降兵演习沙盘制作步骤细节(图)
男士中长发发型推荐
儿童假发女孩粉色中长卷发宝宝泡面头发型婴儿可爱发饰拍照全头套
一个中年女人的悲哀婚姻里最大的错误就是没给自己留下后路
二年级数学脱式计算题.doc
伍佰说你们25岁为什么会听我的歌
小班科学活动:小鸡和小鸭.ppt
山水荷花风景图片
炫酷金属字体酒吧ktv促销活动
不的繁体字 不的异体字 不同音同调字查询
西游记人物谱千里眼顺风耳