相关图片
随机推荐
黄精 黄精的功效与作用01功效作用核心功效补气养阴,健脾润肺,益肾.
雨幕(端游《新天龙八部》主题曲)吉他谱(图片谱,指弹)_许嵩(vae)_雨幕
图集‖迎接丫丫回家的大熊猫战队,威武霸气!花花就负责萌萌哒
对于30到40岁的女士来说,低调又高雅的头像能够彰显出她们的成熟稳重
2021新款男装休闲夹克男士青年大码立领男大码立领外套衣服潮9020
义乌德香卤牛肉180克
再看树先生,还是好看,王宝强演技真炸裂__财经头条
《夜的钢琴曲五》#钢琴谱 #练琴 #曲谱分享 - 抖音
insta360全景航拍天津海河
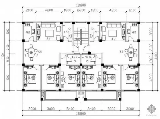
[分享]两室一厅cad户型图资料下载
高级感ins渐变甲双色魔力渐变粉美甲教程
王一博 肖战 博君一肖 文字壁纸 壁纸