高冷的个性签名
图片链接
缩略图
原图
外链
相关图片
随机推荐
2021新年最洋气发型18款很适合这三种人看看有你吗
qrl是被wsc杀死的 王思聪为什么要害kimi有证据吗
winghang b301爆米花机家用迷你爆玉米花机全自动儿童爆米花机 红
曼谷7915芭提雅乘车攻略来啦
侧脸头像男生高冷霸气高清好看的男生头像冷酷帅气侧脸真人图片
不忘初心混声合唱 简谱简谱
圆柱体透视rh-6-130
近日,久违露面的刘晓庆还晒出了一组自己年轻时候的美照,大家看到后
宋轶被曝结婚登记后现身,一双鞋近万元,与白敬亭同住婚房半年多
一老年人晨练突发急性心肌梗死做儿女的一定要知道
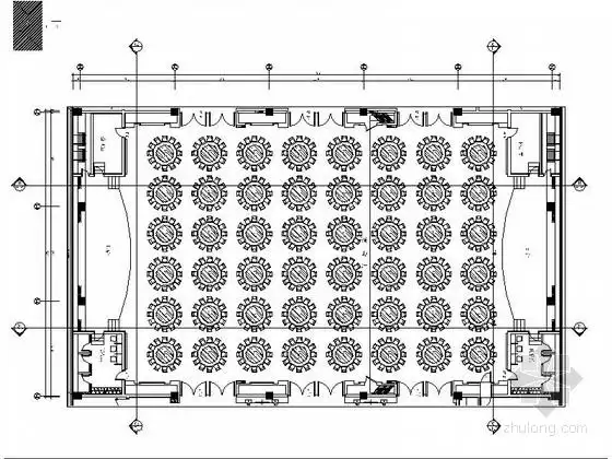
[江苏]某度假酒店a区宴会厅装修图
电视连续剧《 a target="_blank" href="/item/狙击生死线/2633083"