运沙船 - 摄影交流 - 丹城生活网 - powered by discuz!
工作中的运砂船
运沙船运沙子的船
运沙船——地理老师经常说的水运,运量大,速度慢.
万里长江——运沙船
10月29日,几艘空载或半载的运沙船在长江南京下关段航行.
运沙船
朝鲜运沙船
运石船,运沙船,挖石船,挖沙船
各种花图片大全大图(各种鲜花图片大全)-花卉知识网
庄雪梅主任医师科主任
《战狼1》里龙小云的口红是什么?求较准确的回答,谢谢!
4月4日是「咒术回战」三轮霞的生日
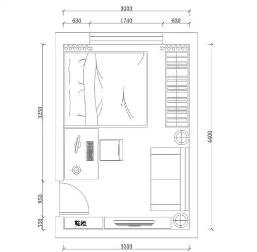
6衣柜,1.2*0.8电脑桌(画宽了),1.5*0.9沙发床,两侧有落地灯,1*0.
慈母情深
组图满满的青春味道14岁初中生小奶狗天真无邪的样子很酷
罗马 第一季
96年30岁叔叔,周末在公司搬砖,喝苦咖啡7515#185大帅哥 - 抖音
虽然现在运动品牌已经多到数不清,也不缺知名专业的品牌,但阿迪达斯和
老是放屁是怎么回事怎么解决方法(一天放屁很频繁是怎么回事)
台式计算机开关电源原理图开关电源电路原理附原理图