400_225gif 动态图 动图
282_412竖版 竖屏gif 动态图 动图
412_282gif 动态图 动图
401_254gif 动态图 动图
帅男gif射箭gif接住gif
弓箭
一个弓.gif
flash怎么制作拉弓射箭的动画? flash制作拉开弓箭效果的教程
奥羽【弓箭射艺吧】_百度贴吧
2.479】新冒险家弓箭手技能光效_冒险岛吧_百度贴吧
1080_1080gif 动态图 动图
弓箭[1].gif___200518103354703.gif
世界上最美的风景图片(全球最美的风景欣赏)
可爱壁纸
性感女神柳岩
2020春季暖心早上好早安图片带字关心朋友的早安问候语
背景介绍随着云南大理大学规模的不断扩大,近千名女学生因为宿舍紧张
5分钟一次宫缩开几指 生孩子的过程真的伟大又可怕 - 妈妈育儿网
我心中的英雄 上次颜色涂色不好看,重新画一张
无论是李连杰还是利智,在他们的照片里都失去了"过去的辉煌".
清凉显手白,短甲也能做!_款式_指甲_手指头
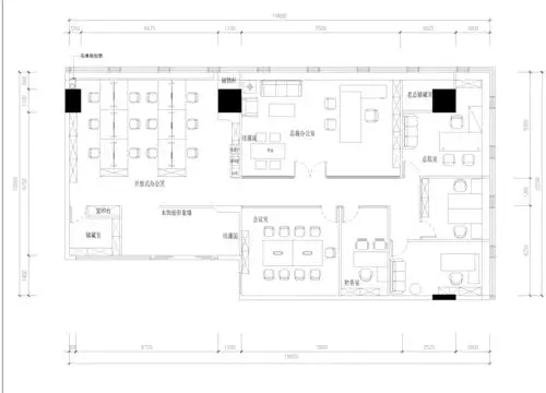
200平办公室布局平面图
宫崎骏风格的场景原画#电脑壁纸 #插画分享 #概念场景 # - 抖音
大u熊