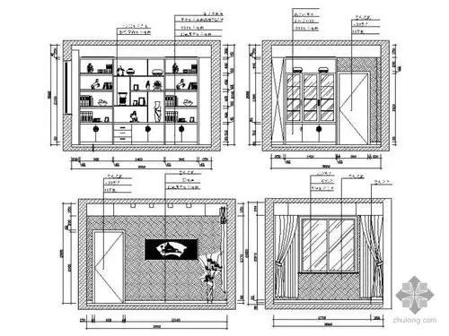
书柜立面图
多种书柜柜子立面设计图
cn304750430s_组合书柜有效
书房立面图
书柜cad立面图
某地多个书柜立面设计图cad图纸
自由组合儿童书柜带门柜子实木松木简易置物储物书架书橱简约现
多个书柜立面
小书房立面图
书柜立面图,书柜剖面图a,鞋柜节点图鞋柜大样图c,鞋柜大样图d卫生间同
元尊——苏幼薇
部队军绿色迷彩背景素材
鹿的简笔画卡通鹿的简笔画图片
明星写真美图|孙安可
2021抖音很火的女儿生日短句
戚薇,杨祐宁《一起深呼吸》定档预告
美女写真,明星壁纸,美女,明星,妩媚,魅力,成熟,吴倩,电脑壁纸,壁纸
谁说鬼子都是罗圈腿盘点荧屏上最帅的五大日本军官
敬世江 - 草书 - "逆"
男性jj长度测量器长短大小粗细毫米大数据对比较阴茎成人jj尺寸
男女暧昧表情包:没什么事,就是有点想你了
配方2盎司金酒1盎司味美思干/ 甜马天尼号称鸡尾酒之王,相信大家在007