浙江省住宅阳台设置轻便消防水龙给这样的开发商点赞
图片链接
缩略图
原图
外链
相关图片
高1.6米的消防柜下底距地带自救卷盘安装尺寸是多少
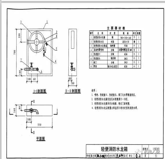
15s202室内消火栓安装-常用规格 - 河南消火栓箱/消防箱/灭火器箱厂家
sg18d65z_j双栓自救式消防箱柜
室内消火栓箱安装技术交底运用实操
15s202室内消火栓安装-常用规格 - 河南消火栓箱/消防箱/灭火器箱厂家
15s202室内消火栓安装-常用规格 - 河南消火栓箱/消防箱/灭火器箱厂家
【消火栓安装图集cad版本】带检修门及灭火器箱组合式消防柜甲型乙型
轻便消防水龙柜成套的价格是多少呢?有没有懂的给个价格参考.
【消火栓安装图集cad版本】 带灭火器箱组合式消防柜(丙丁型)
15s202室内消火栓安装
15s202室内消火栓安装-常用规格 - 河南消火栓箱/消防箱/灭火器箱厂家
7消防箱内带自救盘安装多高
随机推荐
告别大妈感,45岁女性必备的10款"锁骨卷"发型:既时髦又气质
30名官兵获提名陆军第四届四有新时代革命军人标兵评选来了
《一起来看流星雨》登陆 暑期档白天重播,是那年夏天最纯净的慕容云海
组图:陈晓时尚大片曝光 治愈笑容绽放春天气息_高清图集_新浪网
周野芒现任妻子王之夏他不是有三人妻子为什么离婚
cba辽宁队主帅杨鸣现在最需要的是平静因为比赛还没有结束
被16岁程潇美哭了,清瘦水灵比唐嫣还仙,这才是真正的出水芙蓉啊
儿童剧|艾莎公主来啦❄️3d版冰雪女王
赵立坚高颜值外交官可爱又豪横他始终明白祖国利益高于一切
赵今麦白色长裙造型大片,高清壁纸,纯净又甜美_玫瑰_氛围_窗帘
美梦成真开播杨烁大秀男友力
她的丈夫也是一名演员,叫周野芒.