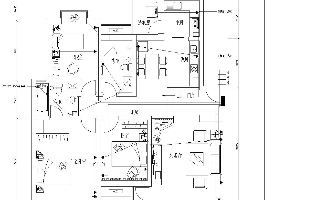
装修设计之电路图
图1-7 四室两厅家庭电气装饰四室线路
家里装修,自己设计的电路图,有没老师傅帮看下有没什么隐患?
一不小心要人命的 看看你家用对了吗
装修装修房子时有哪些验收竣工标准
江苏省公寓楼装饰电气施工图
关于家装的强电和弱电(2016/9/7重新编辑)
设计一个家庭电路,要求客厅开关s1控制l1和l2;卧室开关s2控制壁灯,该
样板间装修电气施工图
家庭装修电路,一个房间一个回路好不好,如何设置回路比较好
装修电路怎么走正规
图1-6 四室两厅家庭电气装饰两厅线路
叶倩文经典粤曲《红尘》,韵味十足,歌声优美动感,太好听了
宝可梦 超极巨化 全图鉴.图片里的 - 抖音
崔雪莉的电影《real》曾因尺度过大引争议
三世因果经 - 唯怡萱 - 唯怡萱
少年行四首令狐楚唐诗注释翻译赏析
蔡徐坤粉丝手帐
写美篇x6-24卡梅拉沛"第六期阅读训练营"第2天打卡,夏天的发散思维
超浪漫的婚礼场景布置图片包括室内室外的婚礼现场布置
音乐辅导班招生海报背景素材
原创第五人格带妹最实用的四大求生者男女搭配上分不累
王一博 动漫绘画版 - 堆糖,美图壁纸兴趣社区
张亮麻辣烫