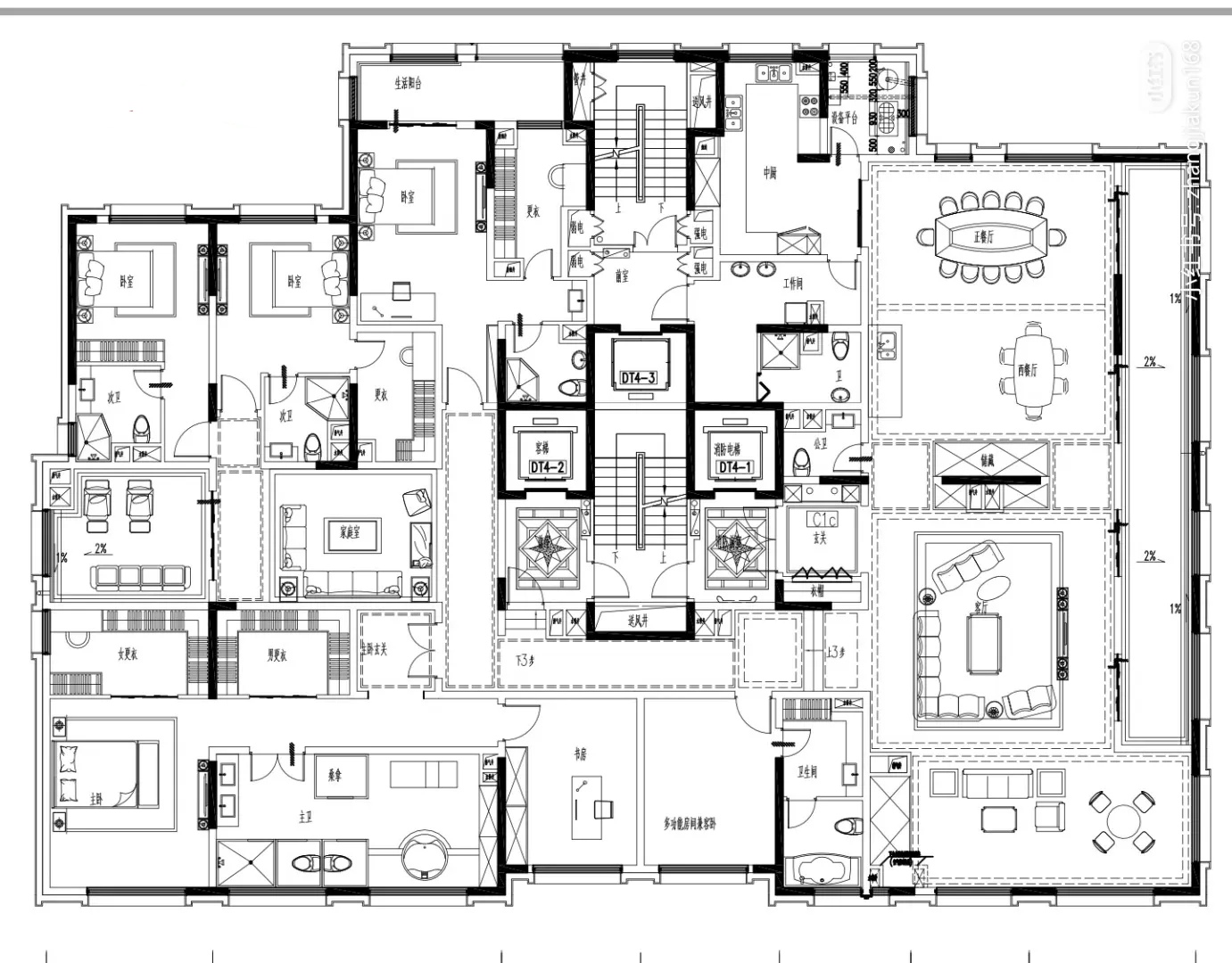
609平米的大平层户型!你有什么想说的吗?
图片链接
缩略图
原图
外链
相关图片
随机推荐
幼儿手工折纸制作卡片 手工折纸大全-蒲城教育文学网
人物,黑发,蓝眼睛,美女,模特,长发,闭着眼睛,ekaterina kuznetsova
angelababy黄晓明最奢华明星婚纱照
高清《守望先锋》 死神 5k图片,4k高清游戏图片,娟娟壁纸
2020最新最流行短发型发型合集
杨澜,我喜欢的主持之一她说:只要手里攥着钥匙,总会走进家的房门.
啄木鸟正品男鞋2024春季休闲皮鞋男士真皮透气百搭软底防滑鞋子潮
实力派画家郑晓京老师手绘国画艺术——梅兰竹菊|写意|花鸟画_网易
保持冷静和theitcrowdminimalismredbackgroundkeepcalmand壁纸图片
热情洋溢的朗诵
清 邓石如《篆书白氏草堂记六屏》书法字帖作品欣赏
史努比