新手学设计(小别墅,平,立面图),求大师指点
建筑立面图设计图片赏析
立面图.jpg
主卧衣柜立面图.jpg
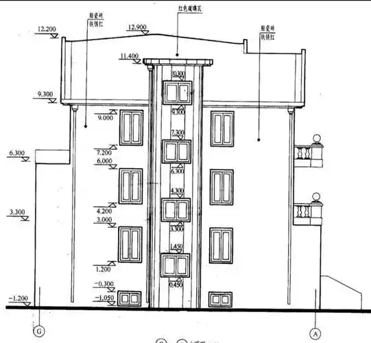
请问这个立面图建筑物檐高是多少?我是新手,-0.15是什么?室外地坪吗?
玄关立面图.png
电视机背景墙立面图要怎么看
第十一课 绘制立面图
[分享]小卧室立面图资料下载
建筑立面图建筑立面图
建筑立面图绘制步骤详解,新手必备
三年级数学乘法竖式运算. - 抖音
剪成了短发 蘑菇头的发型,有些微毛寸效果的男生铲青皮发型,短发发型
crownqueen冕冠女王
新鲜水果和蔬菜
女巫和她的养子
cos正片终结的炽天使柊真昼
莱昂纳多没人能拒绝年轻的小李子
《情深深雨蒙蒙》海报
赵孟頫 · 行楷欣赏
【动漫壁纸】 男人的友谊特辑 赏析
爱情公寓2
欧美各国的工业革命完成于