明白了道家的太极之理就能扩宽眼界提高格局
道教头像
道士 头像:三观不同别硬撑 互相理解比什么都重要.
这些道教常识对很多人都有用
元和堂道家养生四宝之叩齿轻养生即将开启
涂鸦|神仙还可以这样去了解 这是一群头像.
中国道教史之隋唐道教
道教居家信士应如何奉道修行
儒家,道家,法家的基本信仰和原则
定制手绘工笔国画真迹佛像菩萨道教神仙水陆国画
道教用品道家家法坛绣品道八宝法器八卦刺绣道教工艺品
微信头像道教图片大全【点击鼠标右键下载】
几种不同风格黑板高清幻灯片背景图
冰雪巨龙:冰 岩石系,冰雪龙的进化型,xy1
衍纸鸟语花香折纸卷纸画儿儿童手工手工制制作材料折纸
90后的爱情真的会被房价压垮吗?
女骑士
勾肩搭背三兄弟头像
四本玄幻女强文!她精通蛊毒医术,手握系统闯异世,熬夜看完更爽
伤感失恋文字
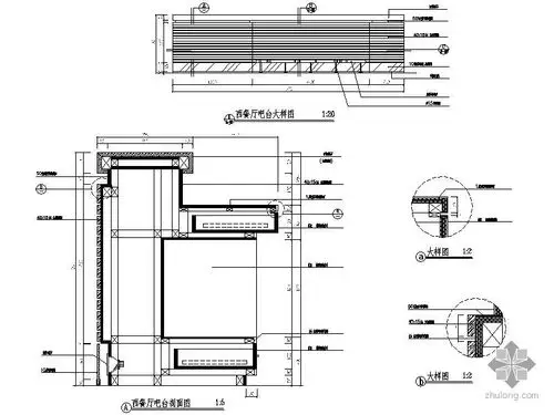
西餐厅吧台设计
九州海上牧云记 牧云德(张晓晨)
赵丽颖冯小刚有特殊关系?
婉容(东方战场主角)刘璇饰,婉容人物关系图_电视猫